Přijatá zpráva - vysvětlení, doplnění, změna dokumentace

Zadávací řízení „Rekonstrukce bývalé restaurace u zámku Hazlov č.p. 310 na p.p.č. 9/2 Obecní úřad – knihovna – konferenční a výstavní prostory“
Odesílatel Lenka Dvořáková
Organizace odesílatele Obec Hazlov [IČO: 00253952]
Příjemce Všichni (včetně veřejnosti)
Datum 25.05.2018 15:05:30
Předmět Re: Žádost o vysvětlení zadávací dokumentace

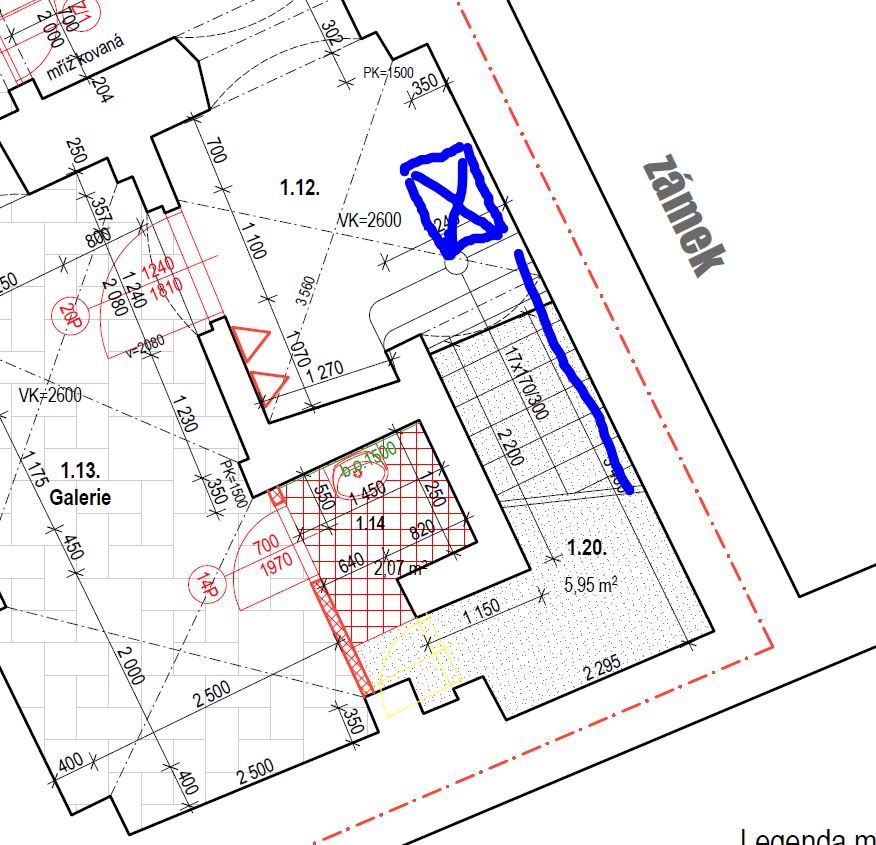
Dotaz. 1
Dle informací č. 7 odpověď 2 budou 2 šikmé schodišťové plošiny. Prosím o určení schodiště, na kterém bude instalována druhá plošina.

Informace č. 1
Zadavatel v příloze posílá výkres s vyznačením schodiště, na kterém bude umístěna druhá plošina. Jedná se o schodiště vedoucí ke knihovně.

Upozornění: Zadavatel, přestože již uplynula lhůta pro podávání žádostí o vysvětlení zadávací dokumentace uvedené v čl. 14 ZD, ještě nyní odpověděl na dodatečné informace, ale pouze z důvodu, že se jedná o bližší upřesnění odpovědí na předchozí dotazy. Zadavatel účastníky nyní upozorňuje, že již dále nebude další dotazy vyřizovat, jelikož je již po lhůtě pro podávání žádostí.

S pozdravem

Lenka Dvořáková
Starostka obce Hazlov


Přílohy
- Dodateční informace č. 9- zadávací dokumentace-zámek plošina.pdf (343,76 KiB)
- plošina II - 1.NP.jpg (155,26 KiB)
- plošina II - 2.NP.JPG (201,09 KiB)

Původní zpráva

Datum 25.05.2018 12:28:00
Předmět Žádost o vysvětlení zadávací dokumentace

Dle informací č.7 odpověď 2 budou 2 šikmé schodišťové plošiny. Prosím o určení schodiště na kterém dude instalována druhá plošina.

Děkuji a s pozdravem